Zeichnen lernen: Fluchtpunkt-Perspektiven einfach und richtig konstruieren

Schnittebene, Horizont, Fluchtpunkt

Schnittebene, Horizont, Fluchtpunkt

Schnittebene einzeichnen

Nun ziehen Sie an einer beliebigen Stelle in der unteren Hälfte der Fläche eine horizontale Linie. Sie stellt eine fiktive Schnittebene dar, an der später die wahren Höhen eingetragen werden können.

Horizont einzeichnen

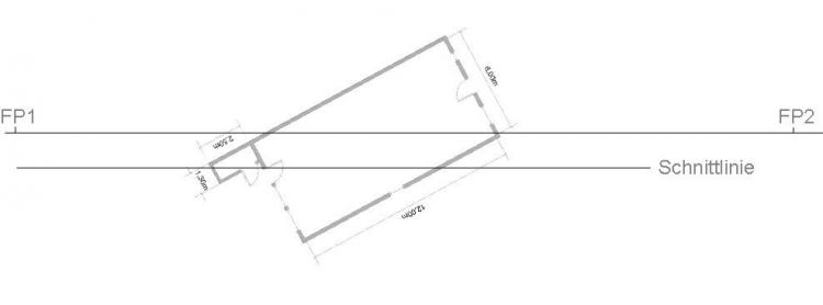
Als nächstes benötigen Sie einen Horizont. Sein Abstand zur Schnittlinie gibt vor, aus welcher Höhe Sie das Haus betrachten. Als Beobachter von der Straße aus ergäben sich hier also 2 cm bei einem 1:100-Maßstab, das entspricht einer (gerundeten) Augenhöhe von 2 m.

62953_perspektive01.jpg

Schnittlinie und Horizont mit einem Abstand von 2 cm

Übersichtlich zeichnen

Die eben genannte Konstruktion führt mit hoher Wahrscheinlichkeit dazu, dass sich alle Linien und Schnittpunkte auf einer ziemlich kleinen Fläche konzentrieren. Das wird mühsam und fehleranfällig. Wenn Sie diese Augenhöhe sinnvollerweise beibehalten wollen, schieben Sie die beiden Linien so weit nach hinten, dass der Horizont gerade eben an der hintersten Ecke des Grundrisses liegt. Dadurch wird das perspektivische Bild größer und leichter zu konstruieren.

Fluchtpunkte einzeichnen

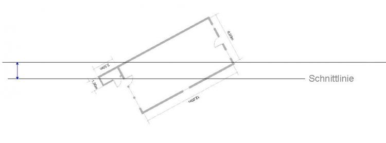
Auf dem Horizont markieren Sie nun zwei weit auseinander liegende Stellen als Fluchtpunkte. Deren Position ist frei wählbar, für eine DIN-A-4-Zeichnung liegen sie etwa 40-60 cm entfernt.

Fluchtpunkte zu weit außerhalb?

Wie Ihnen sicherlich aufgefallen ist, sind 40-60 cm mehr als die längste DIN-A-4-Seite (ca. 30 cm). Das macht aber nichts, denn Sie zeichnen ja nun schon auf dem Transparent, welches beliebig lang von der Rolle gerissen werden kann. Alternativ können Sie auch an die Stelle des Fluchtpunkts einen Streifen Krepppapier kleben und den Fluchtpunkt darauf zeichnen. Dazu drücken Sie das raue Klebeband mit dem Fingernagel glatt.

62954_perspektive01a.jpg

Fluchtpunkte (FP1 und FP2) auf dem Horizont eingezeichnet